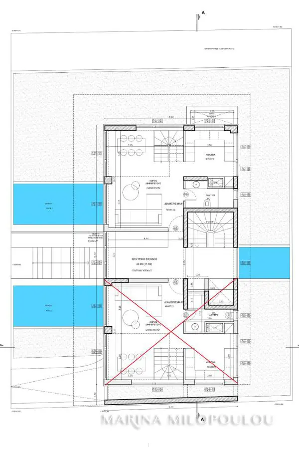
Μεζονέτα προς πώληση Γλυφάδα 141 τ.μ
Γλυφάδα, Αθήνα - Νότια Προάστια€ 750.000 ⇩ € 50.000 στις 11/11/2025
- Εμβαδόν:141 τ.μ
- Δωμάτια:3
- Όροφος:Ισόγειο
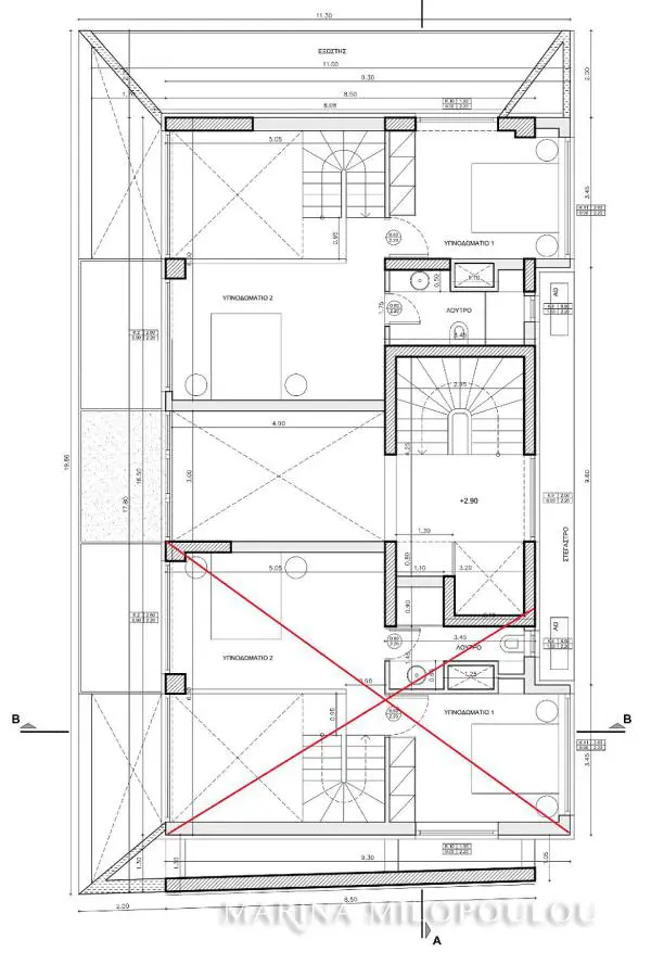
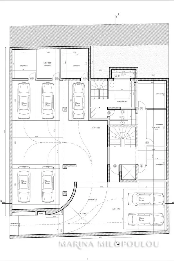
- Επίπεδα:3
- Έτος Κατασκευής:2022
ΓΛΥΦΑΔΑ - Τερψιθέα, σε κτίριο υπό κατασκευή, Μεζονέτα μεσοτοιχίας τύπου loft, 141τμ, 3 επιπέδων, Υπογείου - Ισογείου - 1ου, με ιδιωτική πισίνα 12 τμ και κήπο 100 τμ. - Ισόγειο, 55 τμ, ο χώρος υποδοχής, ενιαία τραπεζαρία διπλού ύψους, ημίκλειστη κουζίνα και 1 μπάνιο. - Υπόγειο, 30 τμ, 1 υ/δ και 1 μπάνιο. - 1ος όροφος (loft), 47 τμ 2 υ/δ (το ένα με μεγάλη βεράντα), 1 μπάνιο. Κατοικία ενεργειακής κλάσης Α++, με συνολικά 6 ιδιοκτησίες, η οποία διαθέτει φωτοβολταϊκά πάνελ, αντλία θερμότητας, ενδοδαπέδια θέρμανση, υπόγεια θέση στάθμευσης και αποθήκη. Τιμή ζώνης 2250€. Απόσταση 4,5 χλμ από πλατεία Γλυφάδας, 5χλμ από παραλία Γλυφάδας, 2,3 χλμ από μετρό Ελληνικού, 3 χλμ από The Hellinicon Experience Park. Παράδοση Απρίλιος του έτους 2026. Στο στάδιο αυτό, ο αγοραστής μπορεί να διαφοροποιήσει τα υλικά κατασκευής των εσωτερικών χώρων.
- Θέση στάθμευσηςΚλειστή
- ΚατάστασηΥπο κατασκευή
- Τύπος δαπέδωνΞύλο
- ΠροσανατολισμόςΑνατολικός, Βόρειος
- ΘέσηΓωνιακό
- Αποθήκη
- Διπλά τζάμια
- Κήπο
- Πισίνα
- Πόρτα ασφαλείας
Είστε κτηματομεσίτης;
Δείτε πως μπορούμε να σας βοηθήσουμε να βελτιώσετε τον τρόπο διαχείρησης του γραφείου σας.Κατάλαβα










