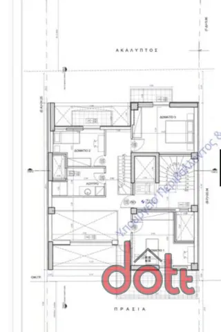
Μεζονέτα προς πώληση Πετρούπολη 160 τ.μ
Πετρούπολη, Αθήνα - Δυτικά Προάστια€ 544.000
- Εμβαδόν:160 τ.μ
- Δωμάτια:4
- Όροφος:5 ος
- Επίπεδα:2
- Έτος Κατασκευής:2024
Πετρούπολη, Μεζονέτα προς Πώληση 160 τ.μ, κατασκευής του 2024, 4 Υπνοδωμάτια, 4 ου και 5 ου οροφου, Θέση στάθμευσης: Πιλοτής, Θέρμανση:Ενεργειακο Τζακι Θέα: Απεριόριστη, Κατάσταση: Νεόδμητο, Τύπος δαπέδων: Ξύλο, Κουφώματα: Αλουμινίου, Ενεργειακή κλάση: Α, Θέση: Διαμπερές, Διαθέτει: Αποθήκη, Ασανσέρ, Μεγαλη Βεράντα, Διπλά τζάμια, Ηλιακό θερμοσίφωνα,2 Μπάνια, Σίτες.Πλησιον Πλατειας - Σχολειων και ΜΜΜ. κωδικός ακινήτου: 656
- Θέση στάθμευσηςΠιλοτής
- ΘέαΑπεριόριστη
- ΚατάστασηΝεόδμητο
- Τύπος δαπέδωνΞύλο
- ΚουφώματαΑλουμινίου
- ΘέσηΔιαμπερές
- Αποθήκη
- Ασανσέρ
- Βεράντα
- Διπλά τζάμια
- Ηλιακό θερμοσίφωνα
- Μπάνιo
- Πόρτα ασφαλείας
- Σίτες
- Τζάκι
Είστε κτηματομεσίτης;
Δείτε πως μπορούμε να σας βοηθήσουμε να βελτιώσετε τον τρόπο διαχείρησης του γραφείου σας.Με τη χρήση αυτού του ιστότοπου, αποδέχεστε τη χρήση των cookies. Περισσότερες λεπτομέρειες
Κατάλαβα
Κατάλαβα







