- Size:174 sq/m
- Rooms:2
- Floor Level:Ground Floor
- Floors:3
- Year Built:2025
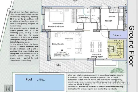
VOULA, near Kalymnou Avenue and opposite a park, in a building under construction, Ground floor - 1st floor - basemenr Maisonette, total 174 sqm, with private garden and swimming pool. -Ground floor, 80 sqm, reception - dining area, separate kitchen, 1 master bedroom, 1 wc, veranda-deck for the pool (15 sq m) and garden 250 sqm. - 1st floor 44 τμ, 1 master bedroom with walk-in closet and exit to a veranda. - Basement, 50 sqm playroom / storage area with natural lighting from cour-anglaise. It is part of an energy class A+ building with a total of 6 properties. It features oak floors, air conditioning (fan-coil), underfloor heating, security alarm, fire detection system, solar panels, LED lighting, thermal break aluminum and double glazing, Smart Home technology, large basement storage and 2 parking spaces. Zone price 2400€. It is located 1.5 km from Voula Square and from Voula's Second Beach, which is being transformed into a sports and recreation area, and 19 km from the airport. Estimated delivery 10/2027.
- Parking spotClosed
- HeatingAir-condition
- ConditionUnder construction
- Floor typeWood
- OrientationSouth, West
- PositionDual-aspect
- Alarm
- Bathroom
- Double glazing
- Garden
- Pool
- Solar water heater









