Floor-through apartment for sale Voula 120 sq/m
Voula, East Attica€ 900.000
- Size:120 sq/m
- Rooms:3
- Floor Level:2nd
- Year Built:2025
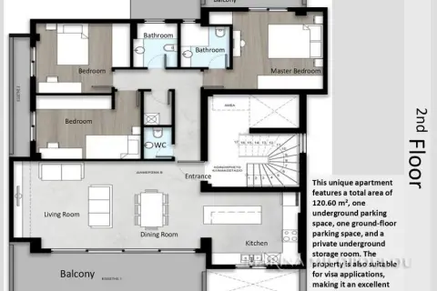
VOULA, in a building under construction, a 2nd floor apartment, 120.5 sq m. Reception - dining area, open plan kitchen, 3 bedrooms (1 master), 1 wc, front veranda and 2 more for the bedrooms. It is part of an energy class A+ building with a total of 4 properties. It features oak floors, air conditioning (fan-coil), underfloor heating, security alarm, fire detection system, solar panels, LED lighting, thermal break aluminum and double glazing, Smart Home technology, basement storage and 2 parking spaces (one in the basement and one on the ground floor). Zone price 2800€. It is located 350 meters from the local market, 1.2 km from Voula's first beach, 1.4 km from the center of Voula and 23 km from the intern airport. Estimated delivery 10/2027 Ideal for Golden visa
- Parking spotClosed
- HeatingAir-condition
- ViewUnobstructed
- ConditionUnder construction
- Floor typeWood
- OrientationSouth
- PositionDual-aspect
- Alarm
- Bathroom
- Double glazing
- Elevator
- Security door
- Solar water heater
- Storeroom









