Apartment for sale Vyronas 49 sq/m
Vyronas, Central Athens€ 190.000
- Size:49 sq/m
- Rooms:1
- Floor Level:1st
- Year Built:2025
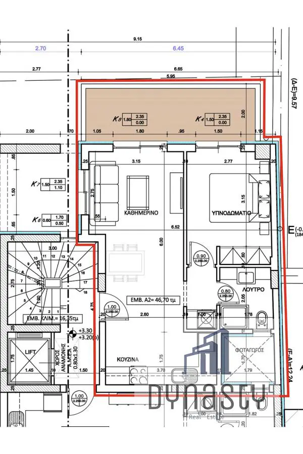
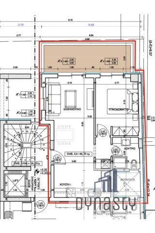
For Sale – Modern Apartment in Vyronas A contemporary and functional apartment of 46.70 sq.m. (49.00 sq.m. including insulation), located on the 1st floor, construction year 2025, with Energy Class A rating. The property includes a dedicated parking space in the pilotis and a storage room in the basement. Situated in a quiet neighborhood, very close to the Vyronas Municipal Swimming Pool and Gymnasium, the apartment features large openings that allow abundant natural light and ventilation while maintaining privacy. It is also within close proximity to supermarkets, schools, universities, and hospitals, with easy access to highways and the airport. Key Property Features: -Built to the standards of a private construction project -Parking space (P4 – 10.12 sq.m.) in the pilotis with electric power supply for EV charging -Basement storage room (No. 4 – 6.52 sq.m.) -External thermal insulation (10 cm) -Internal sound & thermal insulation (5 cm) -Spacious balconies, total surface 12 sq.m. -Thermal-break aluminum frames with double energy glazing, screens, and electric shutters -Autonomous heating with individual natural gas boiler & independent heating collector -Pre-installation for air-conditioning piping -Pre-installation for solar water heater piping -Hydraulic installation with water supply collector -Electrical installation with EV charging capability -Pre-wiring for alarm system -Pre-installation for fiber optic cable -Large-format granite tiles in interior & exterior spaces -Bathroom walls with granite tile cladding -Security door -Video intercom system -Fire detection system -Elevator -Shared garden of 60 sq.m. Property Code: 288 www.dynastyrealestate.gr property ID: 288, dynastyrealestate.gr
- AvailabilityAvailable
- Parking spotSemi-outdoor
- HeatingAutonomous Natural Gas
- ConditionNewly built
- Floor typeTiles
- Window framesAluminum
- ZoningResidential
- PositionInternal
- Suitable forInvestment use
- CharacteristicsBright
- Bathroom
- Double glazing
- Elevator
- Fly screens
- Security door
- Storeroom
- Veranda







